La promoción








Promoción de obra nueva situada en el municipio de Arrigorriaga (Vizcaya), en la Calle Aixarte. Cuenta con un diseño atractivo y actual, en una edificación abierta, distribuida en planta baja, 3 plantas más ático.
www.promoaixarte.com
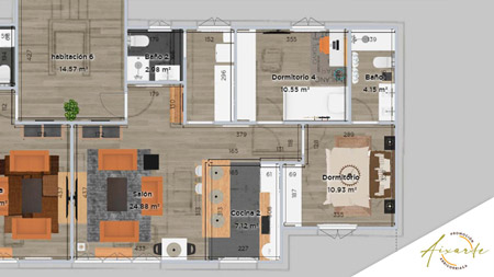
Las viviendas que componen la promoción están diseñadas para optimizar todos los espacios de cualquier dependencia. Las tipologías disponibles son viviendas de dos y tres dormitorios, con salón-comedor, dos baños, uno de ellos en la habitación principal, convirtiendo la misma en tipo suite.
Estos espectaculares ventanales favorecen la luminosidad de las viviendas, todas exteriores.
La promoción cuenta con plazas de garaje y trasteros.
La promoción se localiza en el municipio de Arrigorriaga, ubicación ideal y núcleo neurálgico de ubicaciones de referencia, localizado a tan sólo 16 km de Bilbao.
Del mismo modo, también dispone de un amplio servicio de transporte público, acogiendo líneas de tren y de autobuses.
Si está interesado, puede ver toda la información y todas las fotos acerca de la promoción en
Así es como se anunciaba la promoción de obra nueva en el municipio de Arrigorriaga, situado en la provincia de Vizcaya, concretamente en la Calle Aixarte. Este proyecto destacaba en una edificación abierta que comprendía planta baja y cinco plantas.
Las viviendas proyectadas para esta promoción fueron meticulosamente diseñadas para aprovechar al máximo cada espacio funcional. Se ofrecían diferentes tipologías, incluyendo viviendas de dos y tres dormitorios, todas con un espacioso salón-comedor y dos baños, uno de ellos en la habitación principal, convirtiéndola en una auténtica suite. La presencia de amplios ventanales en todas las viviendas garantizaba una luminosidad excepcional y todas las unidades eran exteriores.
Además, la promoción contemplaba la inclusión de plazas de garaje y trasteros, proporcionando soluciones para las necesidades de almacenamiento y estacionamiento de los futuros residentes.
El proyecto fue comercializado a través de la Inmobiliaria «La Casa Agency», concretamente a través de la agencia «Estudio Madariaga», ubicada en Deusto, Bilbao.
El plan inicial para este proyecto implicaba una renovación completa, donde se demolía todo excepto la estructura esquelética original. Esta estructura sería reforzada para añadir dos plantas adicionales, que serían las que albergarían los balcones. Las unidades en los primeros niveles contarían con amplias terrazas.
Se había previsto que la construcción comenzara en septiembre de 2020, con la intención de finalizarla a finales de 2021 o principios de 2022. Las viviendas de la «Mano A» tendrían tres habitaciones, dos baños, cocina, comedor y tendedero, mientras que las de la «Mano B» ofrecerían dos habitaciones, dos baños, cocina, comedor y tendedero. Estas distribuciones se aplicarían a los niveles bajos, primero y segundo. Para los niveles cuarto y quinto, se tenía planeado ofrecer viviendas un poco más grandes con tres habitaciones, aprovechando el vuelo que se añadiría con la construcción de la cuarta y quinta planta.
Lamentablemente, a pesar de las prometedoras expectativas, este proyecto de viviendas en Arrigorriaga no llegó a materializarse debido que el encargado de la construcción J. A. Dondiz se quedo con el dinero.



